农村建房堂屋不能少,快看这9套中式户型,造价25万起
当下农村建房,很多朋友都觉得堂屋是住宅不可少的传统布局设计。相比起更为现代的玄关,堂屋在农村的用途更加广泛,供奉祖先牌位、红白喜事等,都可以在堂屋进行。要是能建一栋带堂屋的中式住宅,那别提在村里多有面子了。今天住宅公园就为大家推荐9套带堂屋的中式户型,想建带堂屋中式住宅的朋友千万别错过。
户型一:青瓦与素墙、花窗与屋檐,还有围合式小院,这栋清雅的中式宅院,三层楼高,设计了内庭院和外庭院,居住起来别提多舒服了!
预算投资:45—55万

占地尺寸(不含前庭):13.4m*16.8m
占地面积(不含前庭):219㎡
建筑面积(不含前庭):534㎡
总高度:11.5m
建筑情况:共设8室 2厅 8卫 1厨 2起居室 1堂屋 1茶室 4书房 2阳台 1前庭 1门廊 3内走廊 1庭院



户型二:素雅的白墙黛瓦,简单的立柱造型,这套户型不奢华也不时尚,有的是中式建筑独有的古朴气质,屋檐上悬挂几个红灯笼,喜庆之感跃然而出。住宅室内布局十分舒适实用,餐厅厨房一体式设计,合理分配室内空间。
预算投资:25—35万

占地尺寸:11m*19m
占地面积(不含庭院):135.3㎡
建筑面积(不含庭院):246.9㎡
总高度:9.3m
建筑情况:共设5室 2厅 4卫 1厨 1餐室 1堂屋 1棋牌室 1书房 1走廊 1庭院


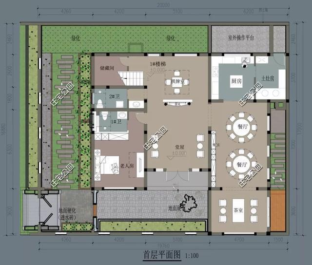
户型三:传统的中式宅院,没有过多的繁复装饰,也并非一味得不食人间烟火,古朴的中式结构与素雅的木色元素,搭配得恰到好处。围合式庭院与土灶房设计,为农村居住者打造理想生活。
预算投资:35—45万

占地尺寸:20m*16.8m
占地面积(不含庭院):175.7㎡
建筑面积(不含庭院):360.8㎡
建筑情况:共设5室 2厅 4卫 1厨 1堂屋 1棋牌室 1茶室 1土灶房 1储藏间 1衣帽间 4阳台 1庭院


户型四:宽敞庭院包围的中式小院,简单素雅。室内设计了5间卧室,足够大家庭居住,舒适的南向露台,功能多多。
预算投资:30—40万

占地尺寸:17.7m*17.7m
占地面积(不含庭院):159.3㎡
建筑面积(不含庭院):308㎡
总高度:9.1m
建筑情况:共设5室 3厅 4卫 1厨 1堂屋 1书房 2储藏间 1露台 1庭院


户型五:一栋矮屋、一方院落,陶渊明笔下“采菊东篱下,悠然见南山”的田园派生活,在这栋宅院中得到了完美诠释。一层住宅室内布局不用太繁复,入户一间大堂屋,符合农村居住习惯。
预算投资:25—35万

占地尺寸:22.1m*12.4m
占地面积:276㎡
建筑面积:258.5㎡
总高度:5.9m
建筑情况:共设6室 2厅 2卫 1厨 2堂屋 1茶室 1廊道

户型六:占地百平、造价较低的新中式小宅,可谓是集美观与实用为一身。户型屋顶采用传统造型,外墙则简单装饰,整栋建筑看上去大方古朴,施工难度较低,适合农村地区修建。
预算投资:20—30万

占地尺寸:12.4m*8m
占地面积:101.6㎡
建筑面积:203.3㎡
总高度:9.6m
建筑情况:共设5室 2厅 4卫 1堂屋 1阳台


户型七:方正稳重的中式住宅,立面采用对称设计,砖红与素白色的搭配不显死板。住宅室内多套间设计,在农村也能享受五星级居住生活。
预算投资:45—55万

占地尺寸:15.1m*13.8m
占地面积:215㎡
建筑面积:390㎡
总高度:8.7 m
建筑情况:共设6室 3厅 5卫 1厨 1堂屋 3衣帽间 1外走廊 1储藏间 1露台


户型八:区别与传统的中式小院,这栋新中式住宅简约大气,更加符合现代人的审美。室内设计了一个健身房和两个大露台,家人足不出户也能享受健康舒适生活。
预算投资:45—55万

占地尺寸:12.6m*12.4m
占地面积:150㎡
建筑面积:386㎡
总高度:11.6m
建筑情况:共设6室 3厅 6卫 1厨 1堂屋 1健身房 2阳台 2露台



户型九:占地不大的新中式二层住宅,更加符合广大建房朋友的宅基地要求,棕黄色调的外观古朴耐脏。住宅室内将堂屋放在了北侧,符合部分地区的布局习俗。
预算投资:25—30万

占地尺寸:12m*9.5m
占地面积:135㎡
建筑面积:232㎡
总高度:8.1m
建筑情况:共设6室 2厅 2卫 1堂屋 1洗澡间 1阳台 1露台


看完这9套户型,大家最喜欢又最适合建哪一套呢?