几款国外农村房屋设计图,追求个性的老铁们可以参考
大家好,我是白帆聊造房,造好房来找我!
咱中国人盖房,最有讲究,自古以来,“天圆地方”就是我们的设计哲学和处世哲学,阳宅房屋的格局要以方正为宜,宅基地讲究规整,室内摆设就更有学问了,几乎内装中的每一个风水知识点,都可以做成一个课题。
回到本篇文章的正题,中国人盖房讲究风水,那老外呢,他们有没有讲究?实际上这个问题的答案很明显,当然有。人,不管在哪,都要有一些寄托,只是在不同的地区,信奉的一些东西不同罢了,这就像不同民族对应着不同的图腾。
以美国为例(毕竟一提到国外,我们首先想到的就是花旗国),老美村里盖房,对品质生活要求很高,再不济也要一栋带草坪的小别墅,以人为本的居住理念,是他们最为优先的选项,所有的事情都要考虑这一点,而且老美盖房还有一个特点,都是木结构房屋,这种结构的房屋,环保、轻便、维护简单,在美国的高速公路上,你如果迎面看到一辆正拉着一栋别墅狂奔的卡车,你也不用太过于意外。

美剧中经常会看到的花园小洋房
美国人在盖房的问题上,某些地方跟中国偏差还是很大的,你比如说,在户型的选择时,美国人更追求个性,我们喜欢方正,老美反而偏向于不规则的设计感。
还比如说,房前种树,放咱们这,有忌讳(在我们传统的风水观念中,一般树栽种在房后为宜,有“保护”之意,当然树木栽种也要讲究距离和品种),更别说在屋前种大树了,白天遮光,夏天蚊虫多,阻挡空气流通,还会招贼,明显对居者会产生负面影响,老美却跟我们恰恰相反,不光要种树,还要大,甚至很多房子都是故意依树而建,你看美剧里面,主角家里通常都会有一棵参天大树,只能说,洋人的体质确实比较特殊。
还有一点比较有意思,跟中国人相比,美国人盖房不会建围墙,顶多也就是围一些栅栏。从这方面就可以很明显的看出中美之间的文化差异,美国人更加开放、自信,中国人则偏向于保守、含蓄,毕竟近代的中国人经历了太多苦难,在安全上非常匮乏,围墙就成了最基本保证这种安全意识的屏障。

比较典型的中国农村三间瓦房
中国人盖房,之前就是“老三样”,三间大瓦房、外墙要高高的、院子里一定要能种菜,随着时代的发展,这种旧的设计思想已经不再适用于当下的农村建设。
新一代的年轻人,尤其是那些看美剧吃麦当劳长大的孩子,个性和品质已经成为他们盖房的刚需,发达的南方地区,这种思潮变化的尤为明显,具有中国特色的独栋乡村别墅已经成为当下农村盖房市场的一种发展趋势。
之前小编也给大家推荐过不少乡村别墅的设计方案,关于这块,没有看过的,或者感兴趣的,可以在网站检索一下,我就不再赘述了,小编今天主要是想跟大家分享一些美国农村房屋设计图,追求个性的自建房业主可以参考下。
A1型美国农村房屋设计图
A1型房屋属于一层半结构设计,两个卧室,功能区完善,小夫妻,或者三口之家,再合适不过。

a1型美国农村房屋一层平面图

a1型美国农村房屋一层平面图

a1型美国农村房屋立面图
B1型美国农村房屋设计图
这套房屋户型方正,在这点上,倒是跟咱们中国人的观念很匹配,开放式厨房,开放式餐厅,整个一层在设计上都是功能区,整体面积超大,视野开阔,二层主要是居住区,三居室设计,这套户型非常适合对功能区有更多需求的多口之家。

b1型美国农村房屋一层平面图

b1型美国农村房屋二层平面图

b1型美国农村房屋立面图
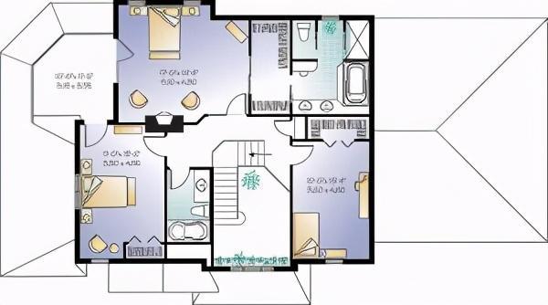
C1型美国农村房屋设计图
这套户型也是我个人比较喜欢的,居住区、功能区丰富,内装很有设计感,两层设计,采光人性化。

c1型美国农村房屋一层平面图

c1型美国农村房屋二层平面图

c1型美国农村房屋立面图
D1型美国农村房屋设计图
D1型美国农村房屋属于比较典型的美式木结构别墅,尖顶设计,外形上很有层次感,一层主要是功能区,车库与生活区打通,乘车通勤很方便,这点很符合美式生活中突出的便利性和汽车文化。

d1型美国农村房屋一层平面图

d1型美国农村房屋二层平面图

d1型美国农村房屋立面图
E1型美国农村房屋设计图
E1型房屋采用的是双车库设计,一层车库可以并排停放两辆汽车,对于多车家庭来说,这是一个很好的选择。房子面积相对较大,户型也相对比较方正,就是左上角有点坑,前面说过,咱中国人在宅基地选择上,讲究规整,最忌讳缺一角,如果采用这款设计,可以补足这点不足之处。

e1型美国农村房屋一层平面图

e1型美国农村房屋二层平面图

e1型美国农村房屋立面图
F1型美国农村房屋设计图
F1型房屋在设计上,有点像咱们中国的L型设计,车库前出,房子主体后置,房子外形上设计的也很有特点,偏向于欧式风格,颇有些古堡的意味。

f1型美国农村房屋一层平面图

f1型美国农村房屋二层平面图

f1型美国农村房屋立面图
G1型美国农村房屋设计图
G1型房屋则是非常明显的方正设计,宅基地方正,房型和户型也方正,一层超大的客厅和餐厅贯穿其中,占据了大面积空间,厨房则被设计在了二楼,这点倒是比较特殊,可能是考虑到某些业主的独特需求。

g1型美国农村房屋一层平面图

g1型美国农村房屋二层平面图

g1型美国农村房屋立面图
h1型美国农村房屋设计图
h1型房屋在设计上则融入了开放式的庭院设计,开放式的建筑走廊跟庭院之间有了一个很好的过度,夏天听雨,冬天赏雪,倒是会有一番别样的风趣。

h1型美国农村房屋一层平面图

h1型美国农村房屋二层平面图

h1型美国农村房屋立面图
这几套小别墅是比较典型的美国农村房屋。
过惯了富裕生活的老美,在房屋设计上非常重视功能区域的建设,从设计到装饰,功能区是房屋设计的大头,在很多美剧中,我们也能很明显的感觉到这种差异,老美的房子,客厅要大,厨房要大,餐厅更要大,还要有多功能车库,车库不光可以房车,平常老美做个手工,玩点花样,都可以在这里进行。
一栋房子,对美国人来说,不光承载了居住的功能,更像是他们生活的一部分。