西安斗门水库建成在即,他会不会成为第二个南湖?来看看它的规划
西安斗门水库建成在即,他会不会成为第二个南湖?来看看它的规划
斗门水库(昆明池)正在加紧建设,雏形已显现,静待“南水”到来。


如火如荼的建设工地(水库为引汉济渭工程的一部分。)
目前区域已经建设好了斗门水库的实验段——昆明池七夕公园。已经成为西安周边旅游的重要景点。不过这个水面只是整个水库水面面积的1/22,整体建成,规模将排在城市湖泊的前几位。

已经建设好的七夕公园

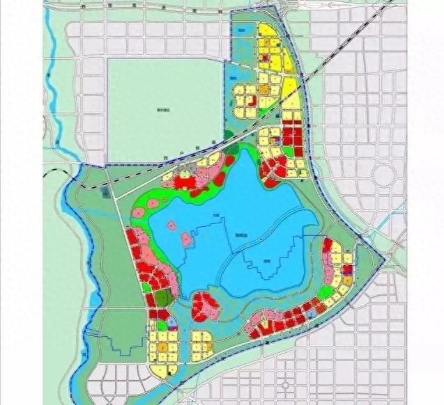
七夕公园和斗门水库整体的对比


从这两张图可以看到斗门水库的规模
昆明池文化生态景区将集中体现西咸新区现代田园城市的核心理念,使现代田园城市与历史古迹相得益彰。一方面,打造汉文化旅游目的地和汉文化展示窗口,吸引全球华人回归汉文化,必将成为华夏文明精神家园的重要基地。另一方面,平衡区域生态、调节微气候,构建水岸生活,支撑西安生态宜居国际化大都市定位。
斗门水库作为陕西省“引汉济渭”输配水工程的重要组成部分,建成后将解决“大西安”未来近200万人口的饮用水问题,同时还将成为西安城西区域的备用安全水源,即应急水源。
昆明池片区,以昆明池为载体,将“生态恢复、文化传承、遗迹保护、水利建设”有机统一,以打造世界级旅游度假目的地为目标,建设成大西安文化旅游、休闲度假、商务办公、会议会展和生态居住功能为一体的综合性生态、文化片区。

范围丨北至西宝高速南线,东至绕城高速,西至沣河,南至西汉高速

面积丨45.20平方公里
人口丨至2030年,总人口15.16万人
规划范围总用地面积为4519.7公顷(45.2平方公里)。至2030年,建设用地1834.4公顷,占规划总用地的40.59%,其中城乡居民点建设用地1573.2公顷,占规划总用地的34.8%;非建设用地2685.3公顷,占规划总用地的59.4%。

(周边以商业用地为主)

昆明池片区开发强度(颜色越深,容积率越高)

除昆明池片区东北部分建筑及昆明池心岛云汉塔高度为70~100米外,片区建筑高度普遍低于70米。

片区内产业规划

规划效果图

规划效果图

规划效果图
引汉济渭二期输配水工程是引汉济渭工程的重要组成部分,承担着将调入关中地区的优质汉江水输送至渭河两岸西安、咸阳、渭南、杨凌4个重点城市、11个县级城市、1个工业园区以及西咸新区5座新城共21个对象的关键任务,对于发挥引汉济渭工程总体效益至关重要。主要建设内容包括黄池沟配水枢纽、103.33千米的输水南干线和88.99千米的输水北干线。批复总投资200.23亿元,建设总工期60个月。
斗门水库建设工程项目开工,该项目投资金额为48.92 亿元,年计划投资15 亿元,项目建设周期为2020.6—2023.6 。
标签:
160
手游键鼠转换器进军吃鸡手游,Kmax枪神王座为何这么火? 知道现在最火的手游是什么吗?如果你的回答还是王者荣耀,那么你就out了!现在大火的手游是吃鸡手游!自从绝地求生的大...
210
旷工几天,公司才能解雇? 在工作当中,有些员工很“任性”直接旷工,那怎样就算旷工呢?旷工就是职工在正常工作日不请假或请假未批准的缺勤行为。那么旷工的话,单位能否将其...
119
考验智商的小说—《你们这些回魂尸》 酒吧里,一名潦倒的男子正在对一个老酒保诉说他离奇的人生。男子说他原本是个女孩,从小在孤儿院长大,后来她和一个来历不明的男子陷入热...
68
管理者如何做好上传下达? 今天,我们继续从团队leader这个角色出发,聊下日常管理中,各级管理干部尤其是基层或初中级管理干部的重要管理抓手:如何做好上传下达。 聊之前,围绕...
167
当飞行员有好几个体检标准,你用哪一个? 国外对我们的偏见 最近在一家知名保险公司谈一个全新的“飞行员失去执照保险”的时候,他们以及背后的再保险公司借用的数据都是国外...
202
“paperang”世界四大纸飞机之一 超强的滑翔能力 Paperang这款纸飞机相当独特,1977年由EdmondHui根据滑翔机的空气动力学,独立地发明了一种隐形轰炸机似的新型纸飞机。它具有可准确控制...
119
安乐传剧情介绍 安乐传演员表 安乐传剧情介绍,安乐传演员表?《安乐传》是由成子瑜、李宏宇、马华干、苏飞执导,迪丽热巴、龚俊、刘宇宁领衔主演,夏楠、裴子添、陈涛、李淑...
192
什么属相不适合佩戴海蓝宝?海蓝宝的功效与作用是什么? 什么属相不适合佩戴海蓝宝?海蓝宝的功效与作用是什么?海蓝宝是一种非常迷人的宝石,被誉为“海底之眼”,具有明亮的...
101
戈尔巴乔夫安葬在妻子旁边-女儿最后拥抱父亲 戈尔巴乔夫安葬在妻子旁边-女儿最后拥抱父亲。当地时间9月3日(星期六),在莫斯科,俄罗斯人在一场低调的葬礼上向苏联最后一位领...
185
中央媒体终于出手-以那英为首的几位明星被惩罚报应来了 中央媒体终于出手-以那英为首的几位明星被惩罚报应来了。2023年8月30日,央视对六位明星被整治的消息进行了曝光,引起了广...
114
眼睛痒是怎么回事?眼睛痒怎么办? 眼睛痒的情况在生活中非常普遍,是眼睛受刺激需要抓挠的一种感觉。引起眼睛痒的原因有很多,那么眼睛痒是怎么回事?眼睛痒怎么办? 眼睛痒...
145
猫的树拍过的作品?猫的树导演作品 猫的树拍过的作品?猫的树导演作品?猫的树,本名袁爽,1991年2月22日出生于江苏省南京市,中国内地男导演、监制。2016年,猫的树签约欢娱影视...
156
汪苏泷为何被黑?汪苏泷坐牢的原因 汪苏泷为何被黑?汪苏泷坐牢的原因。汪苏泷堪称为当下的电视剧主题曲大户了,大多数90后的青春大多都是听着汪苏泷、本兮、许嵩、徐良这几位...
157
豆浆减肥法是什么?喝豆浆能减肥吗? 豆浆是一种高纤维的食物,可以解决我们出现便秘的情况,从而增强我们身体肠胃的运动,那大家知道豆浆减肥法是什么?喝豆浆能减肥吗? 每...
109
有孩子的婚后文古言 有孩子的婚后文现言 有孩子的婚后文古言,有孩子的婚后文现言?好喜欢这种细水长流、日常满满、画面感十足的婚后文,卟语当真推了好多,但也漏看很多求推...
150
小众不易撞的情侣名古风 小众不易撞的情侣名可爱 小众不易撞的情侣名古风,小众不易撞的情侣名可爱?情侣网名已经逐渐成为了当今时代情侣们会去互联网上重点关注的话题和内容...
122
探访宁乡流沙河 原创 张瑾凝 美丽新宁乡 一 流沙河,不仅仅是一条河流的名字。 没到过宁乡的人,知道流沙河,可能源于名著《西游记》。《西游记》第二十二回(八戒大战流沙河,...
146
10首经典英文歌,值得收藏 很多英文歌听了就永远不会删除, 每一首歌都有它的味道, 每一个歌手都在唱自己的故事。 地铁,公交,上班途中,回家路上, 在一首歌里找心情。 01 《...
163
婚后再读《平凡的世界》,才明白孙少安对润叶不是无情,而是痴情 范戴克曾说过:“爱情不是索取,而是给予。”在婚前读著名作家路遥的小说《平凡的世界》的时候,总是不明白孙...
158
耽推 《小受总是在死[快穿]》-九世死亡BE古风虐心的快穿虐文 《小受总是在死[快穿]》 ——BY墨魁 沐子青谢弦 如题,此文还名《花式虐攻》、《虐渣攻的正确方法》、《我的小受为什...